Luxus villa öt lakóegységgel, fantasztikus, félreeső helyen, medencével és álom kilátással
Ez a különleges és gyönyörű, luxus villa medencével Podstranában, kiváló elhelyezkedésének köszönhetően...
2.200.000€
Split
23251 Kolan, Mandre, Horvátország
Eladó
429.000€


































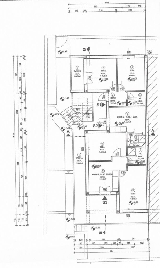
Délnyugati fekvésű ikerház, kilenc lakóegységgel és a nyári időszakban turistáknak történő bérbeadás lehetőségével.
Minden emeleten három különböző méretű lakás található:
– Lakás (S1), amely egy konyhával ellátott nappali/étkezőből, egy hálószobából és egy fürdőszobából áll.
– Egyszobás lakás (S2), amely egy nappali/hálószobából és fürdőszobából áll.
– Nagy lakás (S3), amely egy nappali/étkező konyhával, két hálószobával és fürdőszobával rendelkezik.
Minden lakás külön-külön megközelíthető a saját erkélyéről külső lépcsőn keresztül.
A tetőterasz lehetőséget nyújt a zavartalan tartózkodásra, ahonnan csodálatos kilátás nyílik a tengerre és az egész falura.
A ház földszintjén egy nagy, csempézett padlóval ellátott garázs található, amely más célra is használható, pl. közösségi vagy parti helyiségként. Egy zuhanyzó WC-vel szintén itt található.
Ortschaft im Süden der Insel Pag.
Pag befindet sich ca. 50 km nördlich von Zadar und hat Brückenanbindung an das Festland.
Bis zum Strand sind es nur 100 m. Einkaufsmöglichkeiten finden sich in unmittelbarer Nähe.
Das Haus wird versorgt mit Fernwasser, welches über eine Solaranlage gewärmt wird. Zudem ist auch eine Wasserzisterne vorhanden.
Abwasser wird über eine Septikgrube entsorgt.
Das Objekt ist an das Stromnetz angeschlossen und verfügt über Telefon- und Sat-TV-Anschluss.
Es besteht die Möglichkeit angrenzend ein ca. 100 m² großes Grundstück zu erwerben. Zusätzliche PKW-Stellplätze könnten damit angeboten werden.
Kaufpreis für dieses Grundstück nach Vereinbarung.





Ez a különleges és gyönyörű, luxus villa medencével Podstranában, kiváló elhelyezkedésének köszönhetően...
2.200.000€





Tengerre és természetre néző ! Ez a ház három lakással két emeleten található egy csendes lakó- és...
278.000€
Nyaraló a szigeten
Owning a home is a keystone of wealth… both financial affluence and emotional security.
Suze Orman