Lakóház 8 egységgel és két medencével, 300 m-re a tengertől
Eladó egy lakás ház Privlaka közelében Zadar. A ház 2015-ben épült, 1540 m²-es telken áll, és 6 lakásból...
970.000€
Zadar
52100 Pula, Horvátország
Eladó
1.350.000€









































Villa eladó, 500 méterre a tengertől.
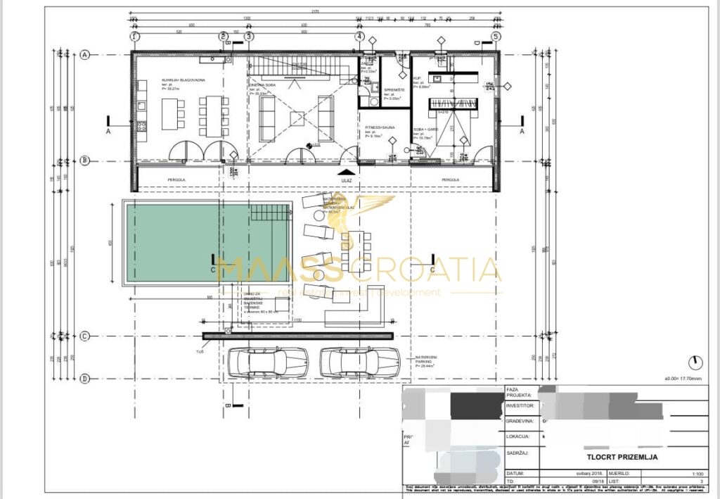
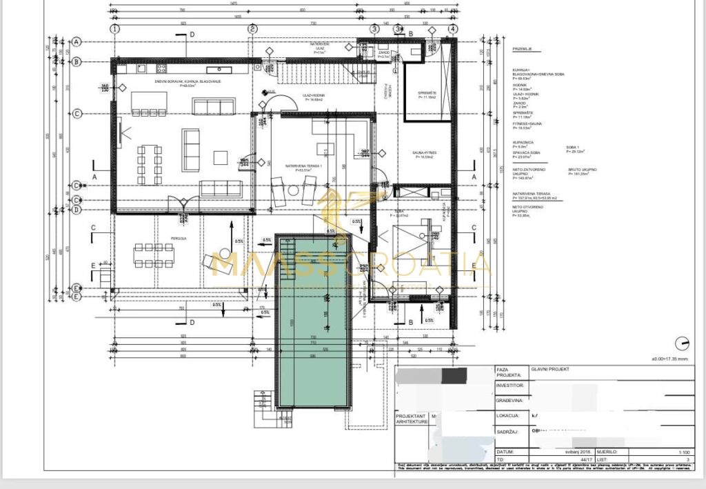
A ház teljes területe 504,57 m2. A nettó terület 404,47 m2. A telek területe 1113 m2. A villa teljesen bútorozottan kerül bemutatásra.
A villa teljesen új, 2021 végén készült el, és olyan felejthetetlen építészeti kifejezés jellemzi, amely nem maradhat észrevétlen. Az építészet világában jól ismert párizsi Grande Arche irodaház ihlette, amelyet a két épületet összekötő nagy ív jellemez. Ennek az isztriai villának a belsejében a belső bejárati előcsarnok kiemelkedik a maga 7,5 méteres magasságával, amelyet az első emeletre vezető légies lépcsőház vesz körül. Különösen vonzó a medence közelsége a belső térhez – a felső emelet alatt rejtve, mindössze 5 méterre a nappalitól és az étkezőtől, valamint 2 méterre a konyhától -, ami különleges hangulatot kölcsönöz neki.
A medence a legmodernebb vízkezelési technológiával és jobb terápiás hatással rendelkezik, mivel a klórt természetes úton, elektrolízissel vonják ki a sóból, ami sokkal egészségesebb, mint a klasszikus klóros vízkezelés, és a klór egyáltalán nem érezhető a vízben, amit az emberek nagyra értékelnek, mert érzékenyek a klórra. A kerítés nagyon vonzó, és gabionkosarakból áll, amelyekbe kézzel zúzott követ helyeztek el. Ezt a követ LED-csíkok is megvilágítják, így esténként kiváló hangulatot biztosít. A villában van egy szabadtéri zuhanyzó és egy szabadtéri mosdó. A meleg vizet a tetőn elhelyezett napelemek fűtik, így a költségek minimálisra csökkennek.
A villa okostelefonhoz csatlakoztatott riasztóval, távoli aktiválási és deaktiválási rendszerrel, okostelefonhoz csatlakoztatott kamerákkal, független rögzítőkkel stb. rendelkezik. A házban van egy lebegő bejárati kapu távirányítóval, bejárati ajtó kódos beléptető rendszerrel, gyep öntözőrendszerrel, töltse fel a medencét saját kútból. A ház teljes egészében vasbetonból készült, nagy fesztávolsággal, tégla nélkül, a legmagasabb földrengés elleni szabványokkal. Minden oldalról hő- és vízszigetelt. A tetőn 28 cm-es XPS szigetelőlemezek vannak beépítve ősszel, a falakon pedig 15 cm-es Rofix grafit hungarocell. A medence szintén minden oldalról XPS szigetelőlemezekkel van szigetelve. A homlokzaton nincsenek ereszcsatornák, amelyek elvezetnék a tetőről lefolyó vizet, mivel a homlokzatba rejtették és egy felszívó kútba vezetik, így esőzésekkor nem áll felesleges víz az ingatlanon, és egy kiegészítő UV-lámpa a lehető legjobban sterilizálja a medence vizét, hogy a baktériumok és vírusok ne maradhassanak életben. A medence fele le van fedve, amit a rosszindulatú bőrbetegségekre hajlamos emberek nagyra értékelnek. Könnyen le lehet zárni teljesen, és télen is lehet használni a medencét. A medencéhez klasszikus lépcső és egy sekély, lusta leszállóhely tartozik az árnyékban. Ezenkívül a medencét hőszivattyúval és a tetőn lévő napelemekkel fűtötték, ami a hidegebb napokon extra kényelmet biztosít. Minden oldalról XPS szigetelőpanelekkel hőszigetelt, így éjszaka is magasan tartja a hőmérsékletet. Ezenkívül a medencében egy hőtakaró is található, hogy a hőmérsékletet éjszakára is fenntarthassa, és télen is használhassa a medencét.
A szobák modern berendezésűek, sok fénnyel és üvegfelületekkel, és a szobákból gyönyörű kilátás nyílik a tengerre és a Losinj-szigetekre. A ház akadálymentesített, mivel nincsenek lépcsők, és a földszint az alsó szobával együtt egy szinten van. A ház kisgyermekek számára is alkalmas, mivel a szülők közvetlenül a konyhából vagy a nappaliból láthatják őket fürdeni. A nagy fedett teraszok rengeteg árnyékot biztosítanak a vendégek számára. A fedett teraszon egy nagy szabadtéri grillező fa és faszénen, valamint egy szabadtéri nyári konyha is található. Az ingatlan minden oldalról körbekerített, így nyugalmat és biztonságot nyújt. a ház körül további vízelvezetés készült, és a fecskekútba vezették. A házban minden üveg háromszoros üvegezésű és mindkét oldalon edzett, E-Low bevonattal ellátott, a hőmérséklet fenntartása érdekében. Az alumínium asztalosmunkák speciális bevonattal vannak bevonva a jobb só elleni védelem érdekében. A csempék mind 80×160 cm-esek, és Spanyolországból importáltak. A mennyezetet az egész házban leengedték, és a folyosókon indirekt világítást is felszereltek.
Minden szobához saját nagy 55″-os LCD TV + 70″-os a nappaliban, minden szobában van parabolaantenna, nagyméretű zuhanyzó minden szobában stb. A villa megfelel a maximális 5 csillagnak.
A kisváros az Isztriai-félsziget délkeleti részén található, mindössze 8 kilométerre a repülőtértől és Isztria legnagyobb városától, Pulától. Ližnjan település 28 kilométer hosszú tengerparttal rendelkezik, ahol nincsenek beépített területek és teljesen érintetlen a természet. Ideális túrázáshoz vagy kerékpározáshoz. Ližnjan kis halászfalu teljes mértékben összeköttetésben áll Medulin turistavárossal, amely hosszú homokos stranddal rendelkezik, és különösen a gyerekek körében kedvelt.





Eladó egy lakás ház Privlaka közelében Zadar. A ház 2015-ben épült, 1540 m²-es telken áll, és 6 lakásból...
970.000€





Ganze 890 m² Grundstück stehen hier zum Verkauf ! Eine Rarität sind mittlerweile Grundstücke in dieser...
154.500€
Modern villa medencével és panorámás kilátással a Brijuni-szigetekre
Owning a home is a keystone of wealth… both financial affluence and emotional security.
Suze Orman